详细介绍
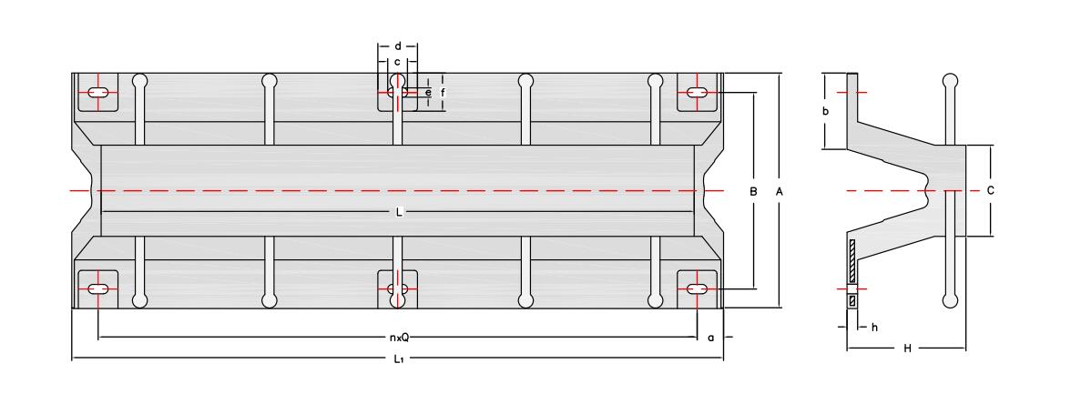
Rubber Ladder mainly install vertically on the quay wall functioned both as rubber fender and ladders, it is reliable and easy for installation.
Features
Protect the quay wall;
Easy for installation;
As rubber fender and ladders;
Specifications


| Specification | Height(mm) | Length(mm) | |||||||
| 200H | 200 | 900 | 1200 | 1500 | 1800 | 2100 | 2400 | 2700 | 3000 |
| 250H | 250 | 900 | 1200 | 1500 | 1800 | 2100 | 2400 | 2700 | 3000 |
| 300H | 300 | 900 | 1200 | 1500 | 1800 | 2100 | 2400 | 2700 | 3000 |
| 400H | 400 | 900 | 1200 | 1500 | 1800 | 2100 | 2400 | 2700 | 3000 |

